300281
+86 0754-8820-7788
sales@jmjj.com
广东省汕头市濠江区河浦大道
三层共挤自粘保护膜机组的关键技术

2024-06-19
关文强, 陈俊鸿, 王侠武
(广东金明精机股份有限公司,广东 515098)

本文介绍了吹膜法自粘保护膜机组的生产流程及工艺难点,分析了自粘保护膜机组生产线对螺杆、模头、旋转牵引以及收卷的特殊要求;阐述了自粘保护膜 “晶点”和“流道线”产生的机理;介绍了如何通过螺杆、模头的优化设计消除幅宽2000mm以上宽幅自粘膜的“晶点”和“水波纹”;同时介绍了如何通过旋转牵引装置和收卷装置的改进,解决了宽幅自粘保护膜在成形后的产生皱褶、缠辊、夹入空气等问题。

保护膜的介绍及分类

保护膜就是一种用来保护易损伤表面的薄膜。其目的是防止受保护基材表面在运送、装配、或加工过程当中受到损伤或污染。保护膜会一直贴在受保护基材表面,直到产品送达使用者时才被撕下抛弃。

保护膜产品可以依照市场应用、所用粘性材料来做分类。

依市场应用分类
保护膜可分为传统保护膜如镀锌钢板保护膜、彩色钢板保护膜、玻璃板或塑料片材保护膜等;另一类就是电子仪器类的光学保护膜,应用范围包括平面显示器、TFT -LCD 模块、背光模块、玻璃基板、以及各种光学组件如偏光板、彩色滤光片等,此类保护膜对粘度及晶点的控制有极高的要求,属高附加价值、高技术门坎之应用。

依所用粘性材料分类,保护膜可分为上胶型保护膜和自粘性保护膜。
上胶型保护膜为目前最应用最为广泛的保护膜,适用范围包括低价值传统保护膜及高附加价值的高科技保护膜。常用的粘着剂有溶剂型橡胶粘着剂、溶剂型丙烯酸粘着剂、水性丙烯酸粘着剂以及硅酮粘着剂。

自粘性保护膜是一种高附加价值且对品质要求较高的保护膜。此类保护膜通常为三层(或三层以上) 之共挤 PE薄膜,并且在其中一面的表层使用自粘性材料而无需使用粘着剂。常见的自粘性材料包括 EVA、超低密度聚乙烯 (Ultra Low Density Linear Low Density Polyethylene or ULDPE)、或聚烯烃塑性体树脂 (Polyolefin Plastomer or POP) 。

自粘性保护膜通常以共挤的方式用吹膜法或流涎法生产,粘性材料在模头内部和PE材料复合,此类保护膜具有无残胶、粘着力稳定、成本低等优点。

吹膜法自粘保护膜机组的工艺流程和技术参数
吹膜法自粘保护膜生产工艺流程:

吹膜法自粘保护膜机组采用三台挤出机分别不同功能的树脂输送、塑化、计量后挤入共挤模头中,当聚合物溶体流出模头时,经吹胀、拉伸变薄后通过内外风环冷却定型,导入人字夹板,然后被旋转牵引装置牵引,再通过导辊导引并边剖分成单片薄膜,各自进入收卷机进行卷取。

三层共挤吹塑成型工艺流程如下:

幅宽2600mm三层共挤自粘保护膜机组的主要技术参数:

制品最大幅宽

口模直径

制品厚度

制品结构

螺杆直径

螺杆长径比

螺杆转速

最大产量

制品厚薄均匀度

制品宽度误差

最大生产线速度

最大收卷直径

机组总功率

重量

外形尺寸(长×宽×高)

2600mm

Ф800mm

0.02-0.12mm

A/B/C

Ф75mm/Ф100mm/Ф100mm

30:1

100rpm

450kg/h

≤±6%

≤±2mm

80m/min

Ф1000mm

500kW

45t

18500×6500×14500

主要原料及制品结构
三层结构A/B/C,层间比例设计为:1:5:4,A层为共挤的外层,使用的是粘性材料,所占比例小于总厚度的10%,s使用自粘性材料共挤复合,无需使用粘着剂;中间层采用30%HD+Exceed2018共混,内层采用LD100AC+Exceed2018共混。

幅宽2600mm自粘保护膜机组的关键技术问题及解决方法

吹膜法自粘保护膜在加工过程中容易产生“晶点”和“流道线”,从而降低薄膜的品质。“晶点”也称凝胶粒,产生“晶点”的原因除原料中的脏物和异物外,较常见的是熔体在螺杆和模头的滞留区受高温和长时间停留的诱导而再度聚合,形成凝胶粒。所以“晶点”产生的主要原因主要跟螺杆和模头的结构有很大关系。由于自粘保护膜对吹膜设备的苛刻要求,导致吹膜法生产的薄膜幅宽通常在2000mm以下,因而一般将幅宽大于2000mm的自粘保护膜称为宽幅自粘膜。

强混炼、低剪切螺杆的设计

常规加工PE材料的挤出机,螺杆通常采用分离型双混炼结构,即通过屏障结构和销钉结构增加混合效果,虽然保证了对熔体的塑化,但在混炼处容易产生烧焦点从而影响制品质量。

宽幅自粘保护膜专用螺杆相对于常规分离型螺杆,在设计上采取以下几点改进,以适应自粘膜加工的要求:

采用负压缩比,即原料输送段的螺槽比较浅,这样有利于原料同步塑化,顺流挤出,保证槽底原料不滞留;同时,在输送段和塑化段不产生过高的剪切热,这样可以减少晶点的产生。

副螺纹的起始位置位于塑化段的末端,避免了微晶点混入液相槽而得不到塑化;“固相槽”无剧烈渐变压缩,不会在螺杆的某段产生高温而造成熔体烧焦。

屏障段设计采用螺旋槽而非直槽。这样,同等长度和相同屏障间隙的屏障头,螺旋槽要比直槽屏障头熔体通过的流量较大,挤出温度较低,在屏障棱上熔体所受的压力较小;另外,槽的深度设计为“入槽由深逐渐变浅,出槽由浅变深”,熔体移动时对槽的“清洁”作用较大,自洁性能好,使熔体纯净不产生晶点。

混炼段采用多线螺棱翻转结构,在每段主螺槽中间设置几条由浅到深的副螺槽,同时布置若干条反向螺槽,在熔融原料输送过程中,熔体在螺槽里面产生拉伸和压缩运动,经过几个重复的过程,熔体得到充分的匀化,熔体温度也显得均匀,使薄膜制品的机械性能(如强度、弹性等)大大提高。由于这种混炼段没有滞积熔料的死角或区域,熔体不会出现晶点及烧焦等缺陷。

图1 自粘保护膜机组螺杆结构示意图

宽幅自粘保护膜专用螺杆在设计方面充分考虑如何避免晶点的产生,不以高产量为主要目的,结合自粘保护膜外层比例小的工艺特点,设计合适的螺杆产量,同时在螺杆的制作上采用新型工艺,螺杆的表面喷涂耐磨合金后再镀铬处理,提高了螺杆的表面光洁度,提高了螺杆对EVA等粘性材料的抗腐蚀性。

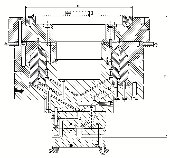
宽幅自粘保护膜专用三层共挤模头的结构特点

自粘保护膜通常有三个功能层:自粘层、基层、其它特性层,外层使用的是粘性材料,属于超低密度聚乙烯,所占比例小于总厚度的10%,和中内层的原料特性差异大,熔体强度较低,不适合大比例吹胀。因而,宽幅自粘保护膜模头和普通PE模头对比,加工同等幅宽的薄膜,所需模头直径大、体积大,这样熔体和模具接触的湿润面积大,熔体在模头内的停留时间长,很容易产生晶点;另外,由于外层所占比例小,三层熔体在模内复合时中内层熔体对外层熔体均匀复合有影响,可能造成外层熔体流速不稳、产生水波纹等常见膜面缺陷;其次,自粘保护膜的模头螺旋起始漏流点处熔体温度、流速不同于其它位置,易产生流道线,从而影响被保护物体的视觉效果。

宽幅自粘保护膜专用三层共挤模头的创新点

结合中外层螺旋体体积不同,分配流道的长度不同,在不减少螺旋流道数量的基础上将中外层分配流道由以前的一段结构分成两段结构,第一段分配流道长,但数量少一半,这样在同等挤出量的情况下熔体在第一分配段处产生的剪切大,流速快,熔体不滞留,第二分配段的分配流道数量倍增但长度短在低剪切条件下由于路程短,熔体也不会滞留。本设计解决了模头体积大,熔体在模头内的停留时间长,很容易产生晶点的技术难点,也是模头设计的第一创新点。另外本设计还带来一项好处,内层流道和中外层错开,有利于提高制品厚度均匀性。另外,在螺旋分配前,分流道的横截面完全是“O”形,熔体所受的剪切力和摩擦力一致,和传统的“D”形流道比较起来,不会造成滞留,这样就会缩短熔体的换料换色时间,同时减少晶点的产生。

自粘膜模头外层粘料所占的层间比一般要求小于10%,因而将外层“螺旋槽”加工在模壳的内表面,“螺旋槽”的起始漏流在外层螺旋槽的内侧,这样起始漏流形成流道线的熔体被包裹,成膜后被隐藏,彻底消除了常规外螺旋模头无法克服的流道线,另外、螺旋槽的深度多段式变化,随着漏流量的减少,螺旋压力角变大,增加了靠槽底熔体的剪切速率,避免了熔体在槽底的滞留,同样会缩短熔体的在模头内的停留时间,减少晶点的产生。

模头设计的另外一项特点在于A/B/C三层采用两次复合方式,比例小的外层和比例大的中层先复合,稳定后再和内层复合,这样避免了常规三层模头A/B/C同一位置复合而造成的界面不稳定,易于产生熔体紊乱而导致的“水波纹”现象。

图2 “模口”直径800mm的三层共挤自粘保护膜模头

总之,通过对螺杆、模头的多项创新性和针对性设计,解决了宽幅自粘保护膜无“晶点”、无“流道线”、无“水波纹”的特殊要求;解决了自粘保护膜幅宽越大、晶点越难解决的技术难题。

宽幅自粘保护膜加工过程中产生皱褶的解决方法

皱褶是自粘保护膜生产过程中需要解决的一大技术难点。在吹膜过程中,由于圆形膜泡需要被人字夹板夹扁,在夹扁过程中模口上各点到牵引辊的距离并不同,所以薄膜过人字夹板时容易产生皱褶。另外一个容易产生皱褶的原因地方是旋转牵引装置。旋转牵引需要通过气垫辊进行换向,在换向过程中通过两条高压气垫辊产生的气垫来避免薄膜在摆动过程中和辊的相对滑移而造成的膜面划伤。自粘保护膜表面有粘性,滑移容易导致皱褶的产生。同时高压气垫的空气是超高压风机供给的,风机在增压的同时风的温度也会上升,接触到膜上增加了自粘保护膜的表面粘度,从而产生皱褶。

自粘保护膜生产过程中消除皱褶主要有以下方法:

稳泡器、夹板、牵引等装置和自粘保护膜接触的导辊表面喷涂陶瓷或铁氟龙进行防粘处理,可以有效降低了自粘膜和辊之间的粘力;再而就是减少夹板的夹角和减少导辊的转动阻力,一般夹板的夹角设定在14°左右效果比较好。

改进旋转牵引的传动方式,通过新的结构将行星传动的中心轴改到机器的上下位置,这样两根旋转换向气垫辊的切线就可以布置到机器的中心,此项设计消除了气垫辊中心和旋转牵引中心的偏心距,减少了薄膜因为的泡偏而造成的皱褶。

图3 自粘保护膜旋转牵引的传动方式
宽幅自粘保护膜因在收卷过程中产生颈缩、缠辊、夹入空气等问题的解决方法

普通收卷机应用于自粘保护膜时,都会有皱纹、卷边、暴筋和排气等难题,使得膜卷无法进入下一道工序加工,导致薄膜不能使用。

另外收卷过程容易缠绕辊筒,不能稳定生产也是自粘保护薄膜突出问题;同时自粘保护膜收卷过程中膜卷内容易夹入气体,随在膜卷的运转,夹在膜卷内的气体往一些区域集聚,在膜卷上形成凹凸不平的硬块,薄膜的弹性使得膜卷两端容易出现卷边情况。

为了解决上述问题,宽幅自粘保护膜机组做了如下的改进设计:

收卷机上设计一个压力可控制的接触辊,在薄膜卷绕过程中,控制系统根据生产速度、薄膜厚度、膜卷直径等工艺参数,计算出膜卷所需最佳压力,通过电气转换阀控制接触辊压力,实现不同生产状态下膜卷压力的调整,有利于膜卷内气体的排出,使膜卷保持平整,克服膜卷卷边现象。

针对牵引和收卷两个关键张力控制点,采用速度同步加张力反馈调整的方式,在收卷过程中卷绕电机根据线速度、锥度和卷径计算电机转速,在速度同步基础上用磁粉进行张力调整;在换卷过程中控制器根据转盘速度、膜卷直径、线速度变化等参数,计算出卷绕电机运行速度,通过转速调整以及磁粉的配合,达到最佳的张力控制效果,实现换卷过程中张力高精度稳定控制,保证生产出来的膜卷张力均匀,端面整齐。

薄膜进入收卷前设计有低摩擦的展平装置,采用橡胶条展平结构,自带动力,运转过程摩擦小,对薄膜表面起到很好的保护作用,有利于自粘保护膜展平。

结语

采用吹膜法共挤成型技术生产自粘保护膜,可以直接一次成型,免去涂胶工艺,给用户带来极大的方便,解决了普通带胶型保护膜与电子产品的外壳反应引起掉胶的问题,同时避免涂胶工艺高能耗、高劳动强度、低附加值的缺陷。通过挤出螺杆、模头、旋转牵引、收卷等关键部件的优化改进,解决了宽幅自粘保护膜在生产加工过程中出现的问题,促进了保护膜行业的发展!

参考文献

[1] 李浩.挤出吹塑薄膜流道线产生的原因及解决方案[J].中国塑料,2019,11(4):51.
[2] 唐伟家.共挤多层复合薄膜的材料、性能和应用[J].现代塑料加工应用,1989,1
[3] 张顺强,剡军. 微晶PE保护膜2420H质量改进及应用[J].现代塑料加工应用,2020,1